Permit for the ‘Xtracare Deck Creation’ Project in Maryland, USA

Project Overview
Client Profile
Xtracare (Ori Lev) Decks
Location
4549 WINDSOR LANE BETHESDA MD 20814, USA
Industry
Commercial Property
Inputs
Site details, Sketches
Deliverables
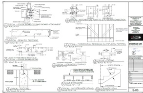
Final Permit Drawing Set as per Montgomery County Requirements
SOFTWARE WE USED
Business Needs
Xtracare Firm wanted to build an extra deck adjacent to an existing deck on the backside of their business at 4549 Windsor Lane, Bethesda, MD 20814.
To do this, they need a thorough and speedy permit approval procedure in accordance with Montgomery County regulations.
Challenges
- Ensure that all permit drawings and applications meet Montgomery County’s exacting criteria.
- Collecting and arranging site data, drawings, and other permit-related documentation.
- Obtaining permission approval before the planned time will satisfy the client’s timing expectations.
- Reducing extra expenditures, such as those involved with getting a surveyor’s signature.
Outsource your building permit expediting requirements to us
Our Solutions & Approach
Data Compilation and Drawing Creation
Collecting site data and drawings from the customer.
Created a thorough permit drawing set that met Montgomery County’s criteria.
The Permit Application Process
Completed the permit application on the Department of Permitting Services website.
Included all of the relevant data for the project and paid the permit costs depending on the project’s size and scope.
Document submission and review
Uploaded designs and supporting papers to the Project Dox Portal within 48 hours of receiving the email request.
Addressed reviewer criticism, including delivering a site survey document pre-signed by the customer that identified the proposed deck’s drawbacks.
Communication and coordination
Maintaining clear contact with the client to respond immediately to any further information demands from the county. To minimize delays, we made sure that all essential paperwork was produced and validated before submitting my application.
Business Impact
Timely Approval – The final permit was approved ahead of schedule, allowing the project to proceed as anticipated.
Customer Satisfaction – The customer, Xtracare Firm, was pleased with the quickness and professionalism of Tejjy Inc.’s permit expediting team.
Cost Savings – By using the pre-signed site survey paperwork instead of paying for a new surveyor’s signature, we saved money.
Streamlined Process – Created a systematic approach to permit expediting that can be used on future projects, increasing Tejjy Inc.’s image as a dependable and efficient permit expediting service provider.
Project Samples

