Prefabrication Ready- MEP Shop Drawings Services- HVAC Mechanical, Electrical, Plumbing, Fire Protection
Tejjy’s MEP drafting and drawing services in USA facilitates HVAC/Mechanical drawings , electrical drawings, spool drawings, fire protection drawings with specified BIM LOD (Level of Detailing 100-500) for fabrication, installation, assembly, and facility management of the design-build process. Our in-house 3D scanning capabilities enthrust us to create MEP As builts for existing conditions of residential, commercial and infrastructural projects. Our team works to MEPFP drawings, clash coordination,
Our deliverables include layout routing of pipes, ducts, and electrical wiring, location of equipment such as boilers, HVAC units, and electrical panels. For 18+years , Tejjy MEP engineers has been facilitating contractors, MEP Engineering firms, Fabricators, Owners to design construct buildings, ensuring safety, quality adherening to MEP standard codes and regulations.
We adopt Revit, Naviswork workflow to facilitate coordination drawings services for MEP components. For streamlined workflow to reduce rework at the preconstruction stage continuous coordination meetings and virtual mockups amongst stakeholders are organized. Tejjy experienced MEP engineers in USA, also facilitate construction drawings, isometric drawings, elevation drawings for required HVAC, electrical, plumbing, fire protection components.

Revit MEP 2D Drafting Services for Fabrication, Assembly, and Installation
Case Studies

The Quail Ridge project for Amazon data services involves the demolition of existing structures and the implementation of proposed designs by Bohler Civil & Engineering. Clark Construction is tasked with wet utility and advanced topography services. Tejjy’s responsibilities include reviewing design drawings, creating a 3D BIM model, coordinating trades, attending meetings, creating shop drawings, and providing as-built models.
Mechanical HVAC Drawings
Tejjy Inc facilitates plan, detailed, isometric view layouts for mechanical and HVAC (Heating, Ventilation, Air Conditioning) components in building. Our detailed technical document has been trusted and used by engineers, contractors, builders, manufacturers, fabricators to design, install and maintain HVAC.
HVAC Schematic Design
HVAC Plan Drawings: Duct Layouts , Air Handling Units (AHUs): Locations and specifications , Ventilation System Design, Diffusers and Grilles , Piping Layouts, Equipment Locations
Sections and Elevations: Vertical Layouts, Building Sections showcasing HVAC systems integration with the building structure.
Details and Schedules: Connection Details, Equipment Schedules , Control Diagrams
Calculations:Heat Load calculations and analysis, Footfall predictive assessment, Escalator and elevator requirement calculations

Electrical Drawings

Electrical drawings are the technical diagram of the electrical system in the building or structure. These drawings include plans, schematics, and details to illustrate layout, components, and specifications of the electrical infrastructure. Adhering to standards and compliance Tejjy team provides coordination drawings with HVAC and plumbing to avoid any clashes during integration.
Our electrical modeling engineers ensure accurate representation of lighting power systems, component locations, and manufacturer identifications. They use the latest BIM software stack for electrical 3D modeling, clash coordination, and mep drawing preparation.
- Electrical Plan Drawings: Power Layout , Lighting Layout, Wiring Diagrams, Panel Schedules
- Riser Diagrams: Vertical Layouts, Service Entrance
- Single-Line Diagrams(SLD): System Overview of entire electrical system, Components (including transformers, panels, circuit breakers, and major equipment)
- Detailed Schematics: Control Wiring, Protection Schemes
- Schedules and Specifications: Lighting Schedules, Equipment Schedules, Load Calculations (Lightning protection calculation, Electrical load and lighting calculations, Lux level calculation and power design)
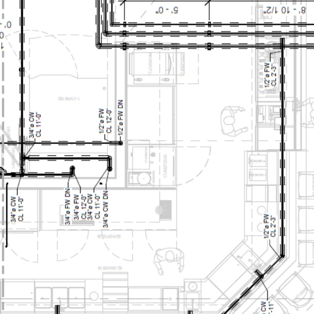
Plumbing Shop Drawings
Tejjy’s plumbing drawings facilitate piping layout for building’s plumbing system, including piping, drainage, garbage disposals, sewerage, and wastewater carriers. Our plumbing modelers have expertise in Water cooled system, hot water system design, rain water harvesting, gas piping, oil refineries, vent piping designs.
Calculations: Pipe flow calculations, Pipe sizing and pressure drop calculations,Pump head calculation.

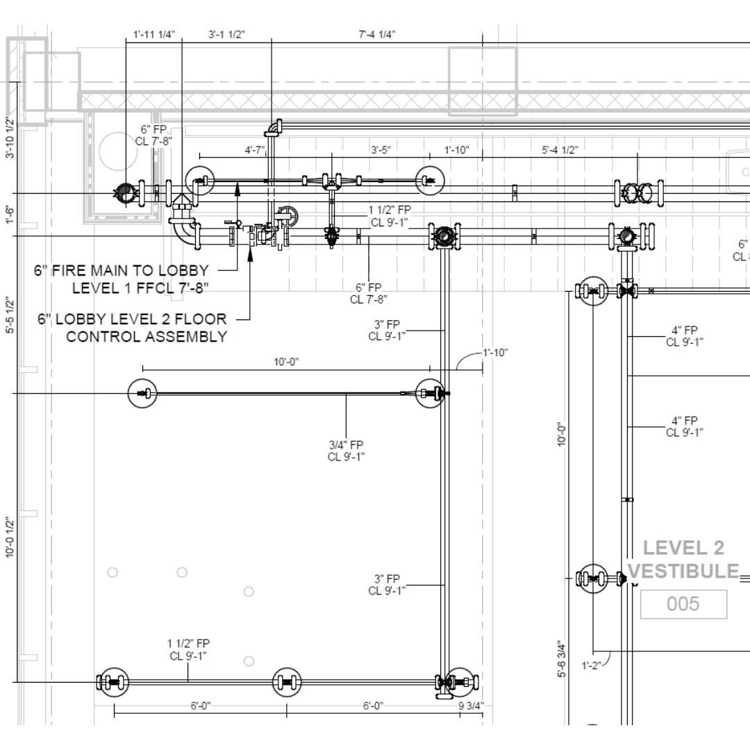
Fire Protection Drawings

Fire protection drawings illustrates schematics, layout, components, and specifications of fire protection systems. They include critical details like pipes, sprinklers, hangers, and control valves. These drawings streamline the installation process, save cost, and save time in construction projects.
- Fire Alarm System Layouts: Detector Placement, Alarm Devices, Control Panels, Wiring Diagrams
- Sprinkler System Layouts: Sprinkler Head Locations, Piping Layout, Riser Diagrams, Hydraulic Calculations
- Standpipe and Hose System Layouts: Standpipe Locations, Hose Connections, Piping Layout
- Smoke Control Systems: Dampers and Fans(Placement of smoke dampers and exhaust fans to control smoke spread), Control panels for the smoke control system.
- Calculation: Fire flow requirements, Hydraulic requirements
Consult Us For MEP Drawing & Modeling Expertise In
Outsource MEP Drafting Requirements to Get Accurate MEP Shop Drawings & Modeling
- Detailed drawings showing the positioning of each component of mechanical, electrical, plumbing, and firefighting systems in the building or structure.
- Producing a comprehensive understanding of dimensions, material specifications, assembly guidelines, and joineries for use in building and fabrication.
- Working in collaboration with engineering and architectural designs to guarantee that there are no clashes between mechanical, electrical, plumbing systems with coordination drawings.
- Examining and revising MEP as-built drawings for facility maintenance and management along with renovations and restoration for water treatment plants, oil gas refinery, infrastructural, industrial projects. , commercial and residential projects.
- On-site assistance is provided throughout the building process to guarantee that the systems are fitted accurately and in accordance with the necessary guidelines.
Our Projects of MEPF In Construction

Core Features of Our MEP Drafting Services
We leverage cutting-edge Computer-Aided Design (CAD) software to create detailed 2D and 3D drawings. These serve as comprehensive guides for contractors, ensuring accurate implementation during the construction phase.
Our team emphasizes meticulous coordination between mechanical, electrical, and plumbing systems. This proactive approach minimizes conflicts, streamlining the construction process and reducing the likelihood of issues arising on-site.
Experience the advantages of Building Information Modeling (BIM) with our services. BIM allows for a digital representation of your building, fostering improved collaboration and coordination among all project stakeholders.
Contribute to sustainability goals with our focus on energy-efficient designs. Our MEP drafting services optimize HVAC systems and incorporate green practices, leading to reduced energy consumption and a smaller environmental footprint.
FAQ
Our Detailed MEP shop drawing services allow MEP Contractors, Engineers, Subcontractors, General Contractors, and Product Manufacturers to easily install and fabricate. MEP shop drawings assist construction document sets to be more cohesive. Contractors and engineers use these design sets to obtain accurate specifications and uncover flaws before the commencement of construction, saving time, money, and labor costs.
- Architects: Architects use MEP drawings to ensure that the building’s systems are integrated seamlessly into the overall design and that the building meets all necessary codes and regulations. They also use them to coordinate with other design professionals such as structural and civil engineers.
- Engineers: MEP engineers create and review MEP drawings to ensure that the building’s systems are safe, efficient, and compliant with codes and regulations. They use the drawings to design and specify the mechanical, electrical, and plumbing systems, including the layout and routing of pipes, ducts, and electrical wiring, as well as the location of equipment such as boilers, HVAC units, and electrical panels.
- Contractors: Contractors use MEP drawings as a guide during the construction process to ensure that the building’s systems are installed correctly and to the proper specifications. They also use the drawings to identify any potential issues or conflicts with other building systems.
- Building owners: Building owners use MEP drawings to understand the building’s systems, to identify any potential issues or inefficiencies, and to plan for maintenance and upgrades.
- Facility managers: Facility managers use MEP drawings to understand the building’s systems, to identify any potential issues or inefficiencies, and to plan for maintenance and upgrades. They also use them to verify compliance with regulations and codes.
Overall, MEP drawings are used by a wide range of professionals throughout the design, construction, and operation of a building, to ensure that the building’s systems are safe, efficient and comply with the codes and regulations.
















