Rebar Detailing Services in USA
Tejjy’s Rebar detailing services produces highly accurate shop drawings, specifications, 3D modeling, estimation for the reinforcement steel bars (rebars) used in reinforced concrete structures. These structures include commercial, residential buildings, bridges, tunnels, industrial facilities, infrastructure project and civil engineering developments. Tejjy detailing and estimation services has been facilitating structural engineers, rebar fabricator, steel erectors, rebar detailers, general contractors, concrete contractors and designers.
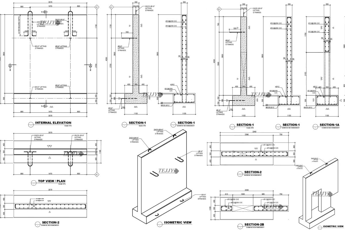
Based on this analysis, Tejjy Rebar detailer facilitates structural steel drawing and specification (size, spacing, and positioning of the rebars), ensuring precision and compliance with project requirements.
Our experienced structural engineers and rebar detailers use advanced BIM technology to ensure:
-
Exact dimensions and bar bending schedules (BBS)
-
Clear rebar shapes, sizes, and spacing
-
Detailed placement drawings for on-site execution
-
Full compliance with ACI, CRSI, and ASTM standards

Our Rebar Detailing Services Include:
Tejjy Rebar, Steel & Concrete Detailing elements Through BIM
As we generate all drawings from the BIM model, we are capable of removing the documentation challenge faced by reinforced concrete detailers. In addition, we provide a bar bending schedule to help keep the job on track. Revit rebar detailing updates our bar bending schedule (BBS) automatically, avoiding human error and saving valuable time.

- Pile, foundation, beams
- Slab on grade & deck, column
- CMU walls, drop panels, concrete curb, lintel, tilt-up panels
- Concrete pad, corbel, precast elements
- Slab with column rebar mode
- Underground tunnel
- Tower foundation
- Equipment pad layout
- Raft slab, PT (Post-tensioning) tendons
- Studs rails, Shear walls
- Flat slab rebar detailing
- Concrete Rebar Detailing
Types of Rebar Detailing Provide:

Our Structural Rebar Detailing Process
The first step in the process is to create a 3D model of the building project using BIM software. This model includes all of the necessary information about the building, such as the location, dimensions, and structural design.
Using the 3D model, the rebar detailing team can begin designing the rebar elements, including the size, shape, and placement of the rebar. The BIM software allows for precise placement and coordination with other aspects of the building project.
BIM software enables clash detection, which helps identify potential conflicts between the rebar and other elements of the building design, such as plumbing or electrical systems. This helps to reduce the risk of errors and ensures that the rebar is properly integrated into the overall design.
Using the 3D model and rebar design information, the rebar detailing team can create detailed shop drawings that provide instructions for the fabrication and placement of the rebar. These drawings include information such as the size and spacing of the rebar, the lap lengths required for overlapping bars, and the location and size of any bends or hooks.
Tejjy Inc. ensures precision and compliance through a thorough Quality Assurance Check, including rebar placement verification and automated Bar Bending Schedules (BBS). Our final design review ensures accuracy while delivering reliable, high-quality rebar detailing for every project.
The detailed shop drawings are used by the rebar fabricator to create the actual rebar, and by the contractor to place the rebar in the concrete formwork before pouring the concrete.
OUR EXPERTISE IN
Outsource Rebar Detailing Services in USA to Tejjy Inc
- Structural integrity: Tejjy structural detailing services ensures the structural integrity of the concrete structure. with the necessary tensile strength to the concrete to resist cracking and deformation.
- Safety: A concrete structure is facilitated that can withstand the intended loads and stresses.
- Cost-effectiveness: Adopting BIM in structural detailing reduces errors lowering construction costs by minimizing the amount of rebar required while still ensuring the necessary strength and durability.
- Compliance with building codes: Steel detailing is often required by building codes to ensure that the concrete structure meets the necessary safety and structural requirements.
Our Projects
FAQ
3D rebar detailing softwares like Tekla, Bluebeam, Rebar CAD, AutoCAD, and Autodesk Revit are used for rebar detailing services.
Rebar detailers develop rebar shop drawings in the structural fabrication and construction sectors to specify the specifications for rebar or other steel construction materials in a project. The bar bending list, bill of materials, and reinforcing features such as isometric view, plan, sections, and details are all included in rebar drawings.