Architectural & MEP Drawings for Retail Market Design | Stafford Virginia Project

Project Overview
Client Profile
Wida Gharshat
Location
Badakhshan Halal Market, 85 Mine Road, Stafford Virginia
Industry
Commercial (Retail)
Inputs
Site conditions and requirements by the client
Deliverables
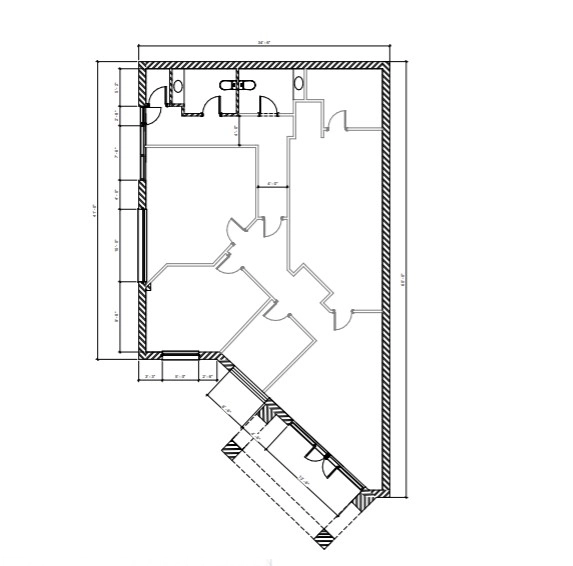
Design of a retail meat market, Architectural and MEP Drawings
SOFTWARE WE USED
Business Needs
The business owner i.e., the retailer required a set of architectural and MEP drawings to execute the construction of the retail center. As the design partner, Tejjy was not only requested for the preparation of drawings but to also aid the design vision which could boost the business.
Challenges
- Balancing space limits and brand continuity while designing was supposed to be one major priority of the project.
- Then the requirement was also about design which should allow timely material sourcing
- Also, for a clear design communication, coordination with retail business stakeholders was a must too.
Outsource your MEP shop drawing services requirements to us
Our Solutions & Approach
Tejjy followed the following sections for the respective facility asset prescribed in ICC/ANSI A117.1-2009 –
- Protruding Objects: Section 307
- Operable Parts: Sections 309 and 404.2.6
- Accessible Routes: Section 304 and Chapter 4
- Parking Spaces: Sections 406 and 502
Loading Zones and Bus Stops: Sections 503 and 805
- Stairways: Sections 504 and 505
- Drinking Fountains: Sections 305-306 and 602
- Kitchens and Sinks: Sections 308, 606, and 804
- Toilets & Plumbing: Sections 304-305 and Chapter 6
- Signs: Section 703
Assembly Areas and Dressing Rooms: Sections 803 and 903
- Storage: Sections 305 and 905
- Dining & Work Surfaces: Sections 305 and 902.
Also, the architect responsible for the project drawings established a clear communication with all the project stakeholders to ensure design effectiveness.
Business Impact
The design approach taken by Tejjy streamlined construction by complying to design intent, quality standards, and safety regulations.
Additionally, Tejjy’s architectural & design services helped in land management, utility installation, insurance, and written substitution requests.
A full documentation package for warranties and maintenance procedures was also developed.
Project Samples












